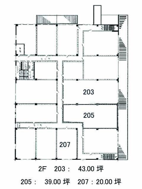
2階 203は現在募集がありません
松岡品川埠頭ビル 2階 203
物件概要
松岡品川埠頭ビルのテナント募集中区画
現在、空室がございません。
松岡品川埠頭ビルのアクセス
松岡品川埠頭ビルの物件情報
松岡品川埠頭ビル(港区港南)は天王洲アイル駅(南口)から徒歩14分の賃貸オフィスです。

