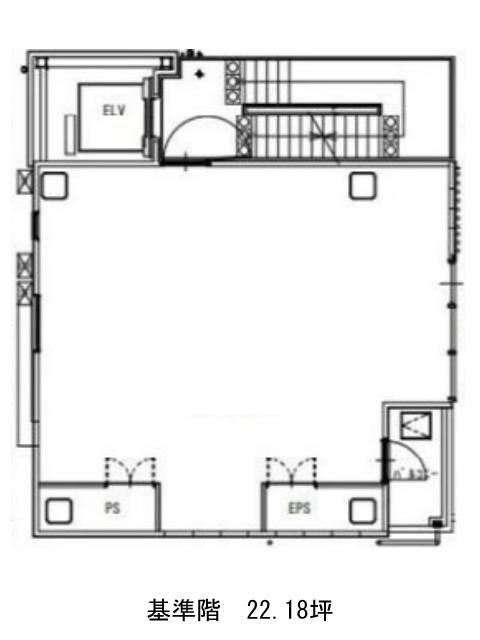
3階は現在募集がありません
IKENO-7 3階
物件概要
IKENO-7のテナント募集中区画
現在、空室がございません。
IKENO-7のアクセス
IKENO-7の物件情報
IKENO-7(港区新橋)は新橋駅(日比谷口)から徒歩4分の賃貸オフィスです。IKENO-7は新橋駅(日比谷口)の他に内幸町駅(A1番出口)徒歩4分、虎ノ門駅(9番出口)徒歩10分で利用も可能です。

