DLXビルディングのテナント募集中区画
| 階数 | 面積 | 賃料(共益費含む) | 保証金 | 入居可能日 | 検討リスト | 詳細 |
|---|---|---|---|---|---|---|
| 4 | 54.80坪 | 応相談(応相談) | 応相談 | 2026年5月上旬 | ||
| 10 | 54.80坪 | 応相談(応相談) | 応相談 | 2026年7月上旬 |
…新着物件
アクセス
DLXビルディングの物件情報
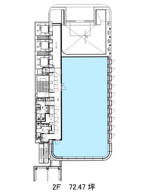
DLXビルディング(港区西新橋)は内幸町駅(A4a番出口)から徒歩1分の賃貸オフィスです。地上12階建てで+A3:E5竣工2016年の物件で建物自体とても綺麗です。外観は全体的に落ち着いた色を基調としており、窓がライン状に並んでいるため、とても統一感があります。エントランスホールやエレベーターホールはとても広々としており、高級感があります。ビル内にはOAフロアが備えられており、トイレは男女別となっております。室内は無柱空間でレイアウトがしやすいでしょう。また周辺にはコンビニや飲食店、銀行などがあるためとても利便性が高いです。DLXビルディングは内幸町駅(A4a番出口)の他に虎ノ門駅(9番出口)徒歩5分、新橋駅(8番出口)徒歩5分で利用も可能です。

