1階は現在募集がありません
NOIR AKASAKA BLDG/ノワール赤坂ビルディング 1階
物件概要
物件番号
133-01094-1物件名
NOIR AKASAKA BLDG/ノワール赤坂ビルディング所在地
- 東京都港区赤坂2-11-23
- アクセスマップ
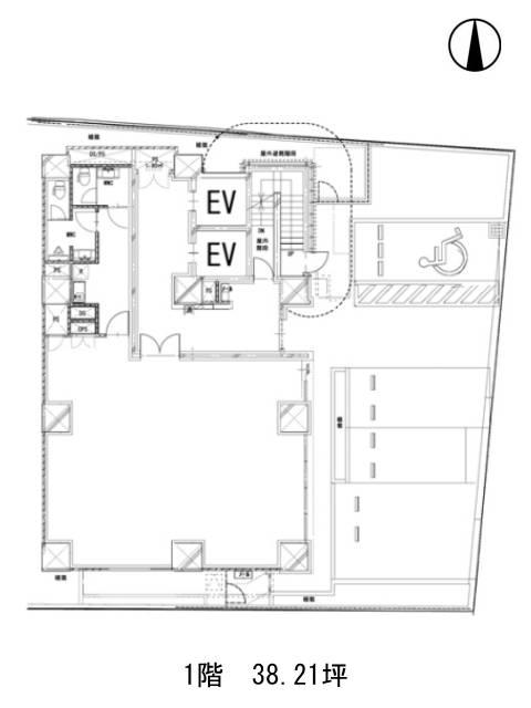
面積
38.21坪賃料(共益費含)
−入居日
募集終了保証金
−礼金
−更新料
−償却費
−竣工
2025年4月構造
RC規模
地上12階/地下1階トイレ
男女別空調
個別空調エレベーター
有セキュリティ
有駐車場
有耐震
新耐震基準基準階天井高
2700mm空室延床面積
−情報更新日
2025/09/22NOIR AKASAKA BLDG/ノワール赤坂ビルディングのテナント募集中区画
現在、空室がございません。
NOIR AKASAKA BLDG/ノワール赤坂ビルディングのアクセス
NOIR AKASAKA BLDG/ノワール赤坂ビルディングの物件情報
NOIR AKASAKA BLDG/ノワール赤坂ビルディング(港区赤坂)は溜池山王駅(12番出口)から徒歩1分の賃貸オフィスです。洗練されたガラスファサードが清潔感に溢れ好印象。赤坂の中心エリアに位置し、駅からのアクセスも良好です。周辺には飲食店やカフェが点在しており、働く人にとって日常の利便性も高い立地です。
基準階は約51坪の整形空間で、フロアによってはセットアップオフィスとしての提供もあり、入居後すぐに業務をスタートさせたい企業にも適しています(※詳細は要確認)。また、OAフロアや個別空調、機械警備、駐車場も完備されており、基本性能も充実しています。
エレベーター2基により動線もスムーズで、来客対応にも配慮された設計。周囲のビルと調和しながらも、ひときわスタイリッシュな存在感を放つ当ビルは、企業のイメージ向上にも一役買う選択肢となるでしょう。NOIR AKASAKA BLDG/ノワール赤坂ビルディングは溜池山王駅(12番出口)の他に国会議事堂前駅(5番出口)徒歩6分、六本木一丁目駅(3番出口)徒歩7分で利用も可能です。

