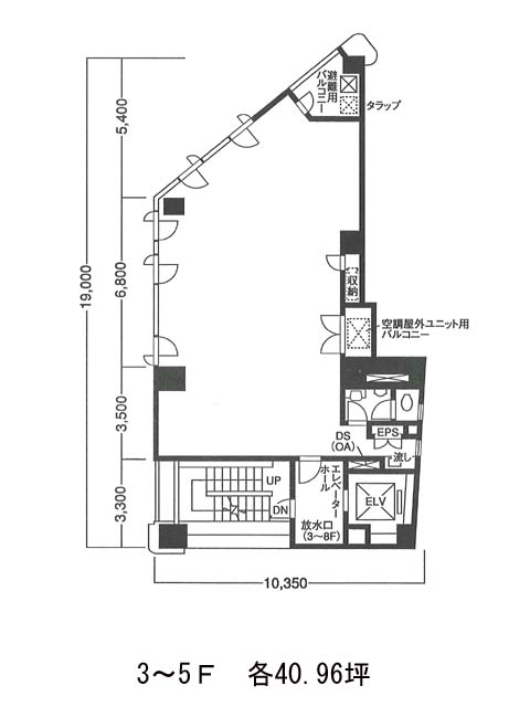
BIC赤坂ビルのテナント募集中区画
| 階数 | 面積 | 賃料(共益費含む) | 保証金 | 入居可能日 | 検討リスト | 詳細 |
|---|---|---|---|---|---|---|
| 5 | 34.34坪 | 1,037,273円/月(30,206円/坪) | 565万円 | 即 | ||
| 8 | 34.34坪 | 1,037,273円/月(30,206円/坪) | 565万円 | 即 |
…新着物件
BIC赤坂ビルのアクセス
BIC赤坂ビルの物件情報
BIC赤坂ビル(港区赤坂)は赤坂見附駅(A番出口)から徒歩1分の賃貸オフィスです。BIC赤坂ビルは赤坂見附駅(A番出口)の他に永田町駅(7番出口)徒歩3分、赤坂駅(1番出口)徒歩8分で利用も可能です。

