8階は現在募集がありません
2フロア募集区画あり

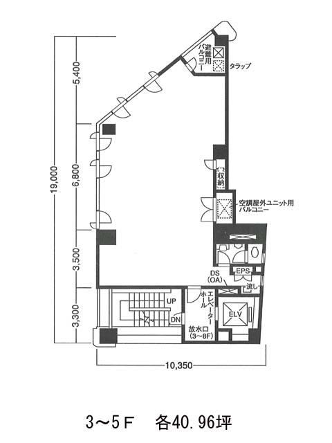
BIC赤坂ビル 8階

前の写真 次の写真

物件概要

物件番号

133-00184-30

物件名

BIC赤坂ビル

所在地

面積

40.96坪

賃料(共益費含)


入居日

募集終了

保証金

礼金

更新料

償却費

竣工

1980年7月

構造

SRC

規模

地上9階/地下1階

トイレ

不明

空調

個別空調

エレベーター

セキュリティ

駐車場

耐震

新耐震基準

基準階天井高

空室延床面積

68.68坪

最寄駅

情報更新日

2026/02/13

BIC赤坂ビルのテナント募集中区画

階数 面積 賃料(共益費含む) 保証金 入居可能日 検討リスト 詳細
5 34.34坪 1,037,273円/月(30,206円/坪) 565万円
8 34.34坪 1,037,273円/月(30,206円/坪) 565万円
…新着物件

BIC赤坂ビルのアクセス

BIC赤坂ビルの物件情報

BIC赤坂ビル(港区赤坂)は赤坂見附駅(A番出口)から徒歩1分の賃貸オフィスです。
BIC赤坂ビルは赤坂見附駅(A番出口)の他に永田町駅(7番出口)徒歩3分、赤坂駅(1番出口)徒歩8分で利用も可能です。

近隣のエリア・駅から探す