8階は現在募集がありません
1フロア募集区画あり

赤坂中西ビル本館 8階

前の写真 次の写真

物件概要

物件番号

133-00332-60

物件名

赤坂中西ビル本館

所在地

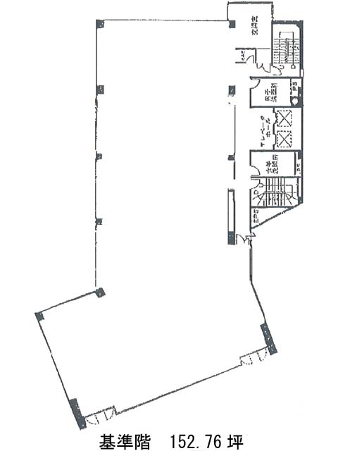
面積

152.76坪

賃料(共益費含)


入居日

募集終了

保証金

礼金

更新料

償却費

竣工

1979年6月

構造

SRC

規模

地上8階/地下B2階

トイレ

男女別

空調

個別空調

エレベーター

セキュリティ

駐車場

耐震

耐震補強済み

基準階天井高

2550mm

空室延床面積

104.74坪

最寄駅

情報更新日

2026/04/06

赤坂中西ビル本館のテナント募集中区画

階数 面積 賃料(共益費含む) 保証金 入居可能日 検討リスト 詳細
4 104.74坪 応相談(応相談) 応相談 2026年5月上旬
…新着物件

赤坂中西ビル本館のアクセス

赤坂中西ビル本館の物件情報

赤坂中西ビル本館(港区赤坂)は赤坂見附駅(A番出口)から徒歩2分の賃貸オフィスです。
赤坂中西ビル本館は赤坂見附駅(A番出口)の他に永田町駅(7番出口)徒歩5分、赤坂駅(1番出口)徒歩7分で利用も可能です。

近隣のエリア・駅から探す