3階は現在募集がありません
赤坂インターシティ 3階
物件概要
赤坂インターシティのテナント募集中区画
現在、空室がございません。
アクセス
赤坂インターシティの物件情報
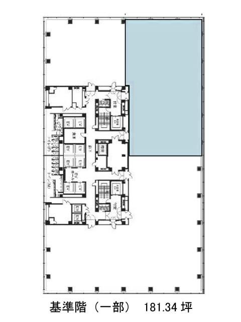
赤坂インターシティ(港区赤坂)は溜池山王駅(14番出口)から徒歩2分の賃貸オフィスです。地上29階建ての物件ということもあり、上層階からの眺望はとても良好です。黒色とあたたかみのあるブラウンの配色がスタイリッシュで、建物前に植えられた木々とも調和のとれた美しい外観には圧倒的存在感があります。エントランスホールやエレベーターホールはとても広々としており、開放感と高級感を感じられます。オフィスはレイアウトのしやすいコの字型の無柱空間です。OAフロア、機械警備、駐車場が備えられており、トイレは男女別となっております。また周辺にはコンビニや飲食店、郵便局などが複数あるため利便性が高いです。赤坂インターシティは溜池山王駅(14番出口)の他に六本木一丁目駅(3番出口)徒歩7分、虎ノ門ヒルズ駅(A2番出口)徒歩8分で利用も可能です。

