TGA AKASAKAのテナント募集中区画
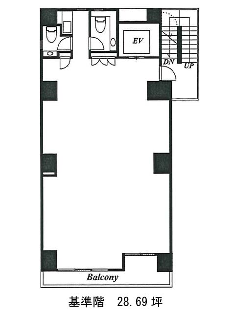
| 階数 | 面積 | 賃料(共益費含む) | 保証金 | 入居可能日 | 検討リスト | 詳細 |
|---|---|---|---|---|---|---|
| 7 | 28.69坪 | 788,975円/月(27,500円/坪) | 717万円 | 即 |
…新着物件
アクセス
TGA AKASAKAの物件情報
TGA AKASAKA(港区赤坂)は赤坂駅(7番出口)から徒歩1分の賃貸オフィスです。TGA AKASAKAは赤坂駅(7番出口)の他に赤坂見附駅(出口1)徒歩9分、溜池山王駅(7番出口)徒歩9分で利用も可能です。

