10階は現在募集がありません
1フロア募集区画あり

TGA AKASAKA 10階

前の写真 次の写真

物件概要

物件番号

133-00963-90

物件名

TGA AKASAKA

所在地

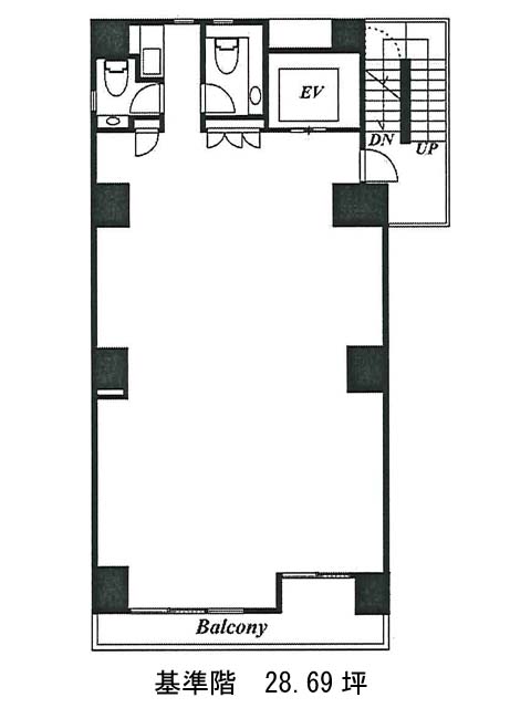
面積

28.69坪

賃料(共益費含)


入居日

募集終了

保証金

礼金

更新料

償却費

竣工

2013年3月

構造

RC

規模

地上10階

トイレ

男女別

空調

個別空調

エレベーター

セキュリティ

駐車場

耐震

新耐震基準

基準階天井高

2800mm

空室延床面積

28.69坪

最寄駅

情報更新日

2026/03/03

TGA AKASAKAのテナント募集中区画

階数 面積 賃料(共益費含む) 保証金 入居可能日 検討リスト 詳細
7 28.69坪 788,975円/月(27,500円/坪) 717万円
…新着物件

TGA AKASAKAのアクセス

TGA AKASAKAの物件情報

TGA AKASAKA(港区赤坂)は赤坂駅(7番出口)から徒歩1分の賃貸オフィスです。
TGA AKASAKAは赤坂駅(7番出口)の他に赤坂見附駅(出口1)徒歩9分、溜池山王駅(7番出口)徒歩9分で利用も可能です。

近隣のエリア・駅から探す