南青山第2シティビルのテナント募集中区画
| 階数 | 面積 | 賃料(共益費含む) | 保証金 | 入居可能日 | 検討リスト | 詳細 |
|---|---|---|---|---|---|---|
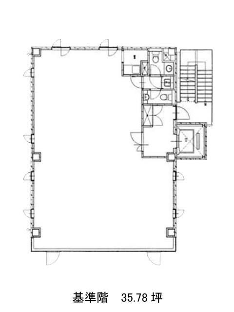
| 4 | 35.78坪 | 787,160円/月(22,000円/坪) | 715万円 | 2026年5月上旬 |
…新着物件
南青山第2シティビルのアクセス
南青山第2シティビルの物件情報
南青山第2シティビル(港区南青山)は外苑前駅(1a番出口)から徒歩3分の賃貸オフィスです。南青山第2シティビルは外苑前駅(1a番出口)の他に表参道駅(A4番出口)徒歩10分、青山一丁目駅(1番出口)徒歩11分で利用も可能です。

