10階は現在募集がありません
2フロア募集区画あり

D-LIFEPLACE南青山 10階

前の写真 次の写真

物件概要

物件番号

137-00884-100

物件名

D-LIFEPLACE南青山

所在地

面積

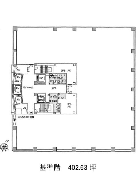
402.63坪

賃料(共益費含)


入居日

募集終了

保証金

礼金

更新料

償却費

竣工

2003年5月

構造

S造

規模

地上12階/地下2階

トイレ

男女別

空調

個別空調

エレベーター

セキュリティ

駐車場

耐震

新耐震基準

基準階天井高

2750mm

空室延床面積

805.26坪

最寄駅

情報更新日

2025/11/10

D-LIFEPLACE南青山のテナント募集中区画

階数 面積 賃料(共益費含む) 保証金 入居可能日 検討リスト 詳細
11 402.63坪 応相談(応相談) 応相談 2026年1月上旬
12 402.63坪 応相談(応相談) 応相談 2026年1月上旬
…新着物件

アクセス

D-LIFEPLACE南青山の物件情報

D-LIFEPLACE南青山(港区南青山)は外苑前駅(1b番出口)から徒歩1分の賃貸オフィスです。
駅出口目の前の立地が大きな魅力の本物件は地上12階地下2階建て。全面ガラス張りのシャープなファサードです。
青山通りに面しているため視認性も高く、来訪者への案内もスムーズでしょう。
エントランスを抜けた先には、間接照明と大理石調の素材が織りなす洗練されたエレベーターホールが広がり、企業の第一印象を格上げしてくれる空間が待っています。
基準階はなんと400坪超え。ワンフロアでも複数部署に分けたフロア設計が可能で、レイアウトの自由度が非常に高い点も魅力です。もちろん、共用部の水回りやセキュリティ面も申し分なし。働く人が快適に過ごせる環境が整っています。
この規模感・設備・立地が三拍子揃った物件は、南青山エリアでもそう多くはありません。「南青山で本社機能を構えたい」「ブランディング重視のオフィスを探している」という企業様には、まさに理想的な選択肢と言えそうです。
D-LIFEPLACE南青山は外苑前駅(1b番出口)の他に青山一丁目駅(1番出口)徒歩9分、表参道駅(A4番出口)徒歩11分で利用も可能です。

近隣のエリア・駅から探す