D-LIFEPLACE南青山のテナント募集中区画
| 階数 | 面積 | 賃料(共益費含む) | 保証金 | 入居可能日 | 検討リスト | 詳細 |
|---|---|---|---|---|---|---|
| 11 | 402.63坪 | 応相談(応相談) | 応相談 | 2026年1月上旬 | ||
| 12 | 402.63坪 | 応相談(応相談) | 応相談 | 2026年1月上旬 |
…新着物件
アクセス
D-LIFEPLACE南青山の物件情報
D-LIFEPLACE南青山(港区南青山)は外苑前駅(1b番出口)から徒歩1分の賃貸オフィスです。駅出口目の前の立地が大きな魅力の本物件は地上12階地下2階建て。全面ガラス張りのシャープなファサードです。
青山通りに面しているため視認性も高く、来訪者への案内もスムーズでしょう。
エントランスを抜けた先には、間接照明と大理石調の素材が織りなす洗練されたエレベーターホールが広がり、企業の第一印象を格上げしてくれる空間が待っています。
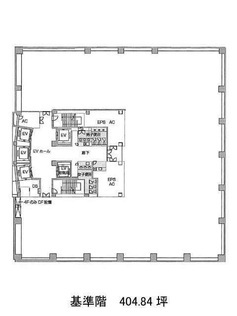
基準階はなんと400坪超え。ワンフロアでも複数部署に分けたフロア設計が可能で、レイアウトの自由度が非常に高い点も魅力です。もちろん、共用部の水回りやセキュリティ面も申し分なし。働く人が快適に過ごせる環境が整っています。
この規模感・設備・立地が三拍子揃った物件は、南青山エリアでもそう多くはありません。「南青山で本社機能を構えたい」「ブランディング重視のオフィスを探している」という企業様には、まさに理想的な選択肢と言えそうです。D-LIFEPLACE南青山は外苑前駅(1b番出口)の他に青山一丁目駅(1番出口)徒歩9分、表参道駅(A4番出口)徒歩11分で利用も可能です。

