DeLCCS南青山 1階
物件概要
物件番号
137-00959-4物件名
DeLCCS南青山所在地
- 東京都港区南青山3-8-5
- アクセスマップ
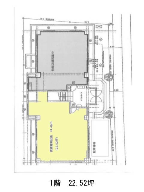
面積
22.52坪賃料(共益費含)
月額693,000円(30,773円/坪)
入居日
即保証金
3,780,117円礼金
1ケ月更新料
なし償却費
なし竣工
1978年5月構造
RC規模
地上3階トイレ
不明空調
エレベーター
有セキュリティ
駐車場
無耐震
旧耐震基準基準階天井高
空室延床面積
22.52坪情報更新日
2025/09/04DeLCCS南青山のテナント募集中区画
| 階数 | 面積 | 賃料(共益費含む) | 保証金 | 入居可能日 | 検討リスト | 詳細 |
|---|---|---|---|---|---|---|
| 1 | 22.52坪 | 693,000円/月(30,773円/坪) | 378万円 | 即 |
…新着物件
アクセス
DeLCCS南青山の物件情報
DeLCCS南青山(港区南青山)は外苑前駅(1a番出口)から徒歩6分の賃貸オフィスです。DeLCCS南青山は外苑前駅(1a番出口)の他に表参道駅(A4番出口)徒歩7分、乃木坂駅(5番出口)徒歩14分で利用も可能です。

