4階は現在募集がありません
第2猪瀬ビル 4階
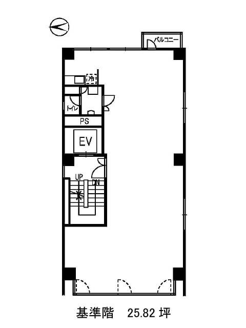
物件概要
第2猪瀬ビルのテナント募集中区画
現在、空室がございません。
第2猪瀬ビルのアクセス
第2猪瀬ビルの物件情報
第2猪瀬ビル(港区北青山)は外苑前駅(3番出口)から徒歩1分の賃貸オフィスです。第2猪瀬ビルは外苑前駅(3番出口)の他に青山一丁目駅(0番出口)徒歩10分、表参道駅(A3番出口)徒歩11分で利用も可能です。

