KRT青山のテナント募集中区画
| 階数 | 面積 | 賃料(共益費含む) | 保証金 | 入居可能日 | 検討リスト | 詳細 |
|---|---|---|---|---|---|---|
| 3 | 119.00坪 | 3,010,700円/月(25,300円/坪) | 1,856万円 | 2026年6月上旬 |
…新着物件
KRT青山のアクセス
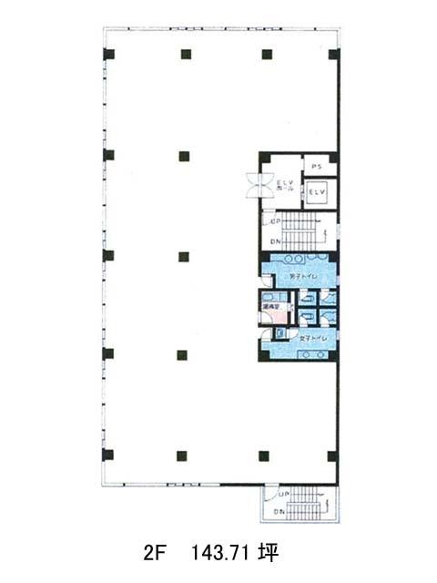
KRT青山の物件情報
KRT青山(港区北青山)は外苑前駅(3番出口)から徒歩3分の賃貸オフィスです。外観は全体的にグレーを基調とした色合いで、シンプルなデザインとなっております。エントランスホールやエレベーターホールは清潔感があり、落ち着いた空間となっております。また周辺には、コンビニや飲食店、郵便局などがあるため、利便性が高いです。ビル内にはOAフロアが備えられており、トイレは男女別、セキュリティは機械警備を導入しております。耐震性も新耐震基準であるため、安心です。駐車場を設けているため、社用車を使う場合も便利です。KRT青山は外苑前駅(3番出口)の他に青山一丁目駅(0番出口)徒歩12分、表参道駅(A3番出口)徒歩12分で利用も可能です。

