道玄坂スクエアのテナント募集中区画
| 階数 | 面積 | 賃料(共益費含む) | 保証金 | 入居可能日 | 検討リスト | 詳細 |
|---|---|---|---|---|---|---|
| 5 | 23.62坪 | 応相談(応相談) | 応相談 | 2025年12月中旬 |
…新着物件
アクセス
道玄坂スクエアの物件情報
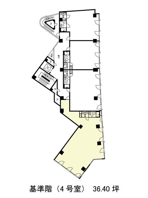
道玄坂スクエア(渋谷区円山町)は神泉駅(北口)から徒歩3分の賃貸オフィスです。道玄坂通り沿いにある、地上9階・地下1階建てのビルです。ベージュの壁とガラスカーテンウォールを組み合わせた、清潔感のある外観です。L字型のビルで、エントランスがある道玄坂側は間口がコンパクトで、隣の通りに面した裏手側の間口は広くなっています。ワンフロアを分割して貸し出している物件で、12坪弱から36坪ほどと部屋の広さが異なります。室内にキッチンとトイレとシャワールームが設置されています。道玄坂スクエアは神泉駅(北口)の他に渋谷駅(西口)徒歩4分で利用も可能です。

