5階 504は現在募集がありません
1フロア募集区画あり

道玄坂スクエア 5階 504

前の写真 次の写真

物件概要

物件番号

156-00053-90

物件名

道玄坂スクエア

所在地

面積

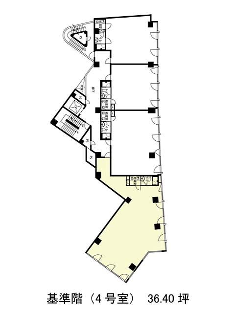
36.40坪

賃料(共益費含)


入居日

募集終了

保証金

礼金

更新料

償却費

竣工

2004年10月

構造

SRC

規模

地上9階/地下1階

トイレ

男女共用

空調

個別空調

エレベーター

セキュリティ

駐車場

耐震

新耐震基準

基準階天井高

2750mm

空室延床面積

23.62坪

最寄駅

情報更新日

2025/12/05

道玄坂スクエアのテナント募集中区画

階数 面積 賃料(共益費含む) 保証金 入居可能日 検討リスト 詳細
5 23.62坪 応相談(応相談) 応相談 2025年12月中旬
…新着物件

アクセス

道玄坂スクエアの物件情報

道玄坂スクエア(渋谷区円山町)は神泉駅(北口)から徒歩3分の賃貸オフィスです。
道玄坂通り沿いにある、地上9階・地下1階建てのビルです。ベージュの壁とガラスカーテンウォールを組み合わせた、清潔感のある外観です。L字型のビルで、エントランスがある道玄坂側は間口がコンパクトで、隣の通りに面した裏手側の間口は広くなっています。ワンフロアを分割して貸し出している物件で、12坪弱から36坪ほどと部屋の広さが異なります。室内にキッチンとトイレとシャワールームが設置されています。
道玄坂スクエアは神泉駅(北口)の他に渋谷駅(西口)徒歩4分で利用も可能です。

近隣のエリア・駅から探す