2階は現在募集がありません
ラウンドクロス渋谷 2階
物件概要
ラウンドクロス渋谷のテナント募集中区画
現在、空室がございません。
ラウンドクロス渋谷のアクセス
ラウンドクロス渋谷の物件情報
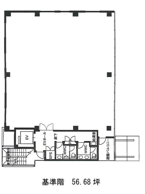
ラウンドクロス渋谷(渋谷区渋谷)は渋谷駅(C1番出口)から徒歩7分の賃貸オフィスです。青山通りの宮益坂上交差点を曲がって少しした場所に立地しています。ガラス張りの外観で、2007年竣工の物件ということもあり、綺麗な建物です。基準階は約56坪あり、室内は正方形の整形オフィスのため、効率の良いレイアウトが組めそうです。ビル内にはOAフロア、個別空調が備えられており、トイレも男女別となっているため設備面は充実しております。駐車場も併設されていますので、車の利用もしやすい環境となっております。また周辺にはコンビニや飲食店、郵便局などが複数あるためとても利便性が高いです。ラウンドクロス渋谷は渋谷駅(C1番出口)の他に表参道駅(B1番出口)徒歩9分で利用も可能です。

