AND CROSS BLDG/AND THIRD BLDGのテナント募集中区画
| 階数 | 面積 | 賃料(共益費含む) | 保証金 | 入居可能日 | 検討リスト | 詳細 |
|---|---|---|---|---|---|---|
| 10 | 50.66坪 | 応相談(応相談) | 応相談 | 即 |
…新着物件
AND CROSS BLDG/AND THIRD BLDGのアクセス
AND CROSS BLDG/AND THIRD BLDGの物件情報
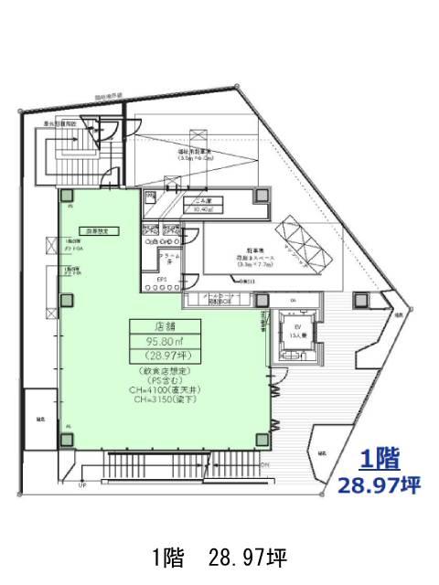
AND CROSS BLDG/AND THIRD BLDG(渋谷区渋谷)は渋谷駅(20a番出口)から徒歩5分の賃貸オフィスです。2025年7月竣工予定、渋谷・宮益坂エリアに誕生する地上11階・地下1階建ての新築オフィスビル。宮益坂上交差点に面し、視認性の高い立地と、渋谷駅から徒歩5分という優れたアクセスが魅力。基準階面積は約50.66坪で、各フロアには個別空調、OAフロア、男女別トイレを備え、働きやすい空間が整っています。エレベーターは1基、24時間の利用にも対応。さらに、一部フロアにはテラスも設置され、リフレッシュや来客対応のスペースとしても活用可能です。
周辺にはカフェや飲食店が点在するほか、渋谷郵便局や大手銀行の支店も徒歩圏内にあり、日常業務や来客対応、金融関連の手続きもスムーズにこなせる環境です。渋谷の中心地で利便性と快適性を兼ね備えた、注目のビジネスロケーションです。AND CROSS BLDG/AND THIRD BLDGは渋谷駅(20a番出口)の他に表参道駅(B2番出口)徒歩9分、明治神宮前駅(7番出口)徒歩15分で利用も可能です。

