4階は現在募集がありません
1フロア募集区画あり

アートビル 4階

前の写真 次の写真

物件概要

物件番号

166-00007-50

物件名

アートビル

所在地

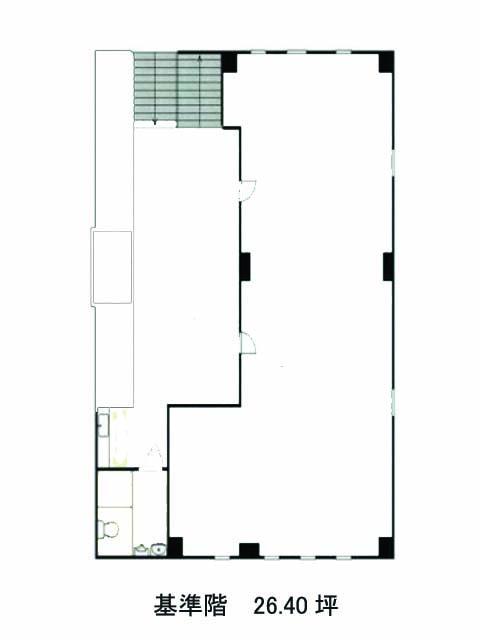
面積

26.40坪

賃料(共益費含)


入居日

募集終了

保証金

礼金

更新料

償却費

竣工

1980年3月

構造

RC

規模

地上5階

トイレ

男女共用

空調

個別空調

エレベーター

セキュリティ

駐車場

耐震

旧耐震基準

基準階天井高

空室延床面積

26.40坪

最寄駅

情報更新日

2025/11/28

アートビルのテナント募集中区画

階数 面積 賃料(共益費含む) 保証金 入居可能日 検討リスト 詳細
3 26.40坪 649,000円/月(24,583円/坪) 171万円
…新着物件

アートビルのアクセス

アートビルの物件情報

アートビル(渋谷区渋谷)は渋谷駅(C1番出口)から徒歩8分の賃貸オフィスです。
アートビルは渋谷駅(C1番出口)の他に表参道駅(B1番出口)徒歩9分で利用も可能です。

近隣のエリア・駅から探す