3階は現在募集がありません
青山熊野神社ビル 3階
物件概要
青山熊野神社ビルのテナント募集中区画
現在、空室がございません。
青山熊野神社ビルのアクセス
青山熊野神社ビルの物件情報
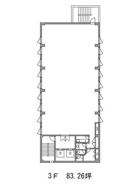
青山熊野神社ビル(渋谷区神宮前)は外苑前駅(3番出口)から徒歩5分の賃貸オフィスです。1991年竣工の5階建て。外苑西通りから少し入った穏やかな街並みの中にあります。白い石張りの外観には清潔感があり、きちんとした印象があります。エントランス内は手入れが行き届き、まるでホテルのような高級感が漂います。基準階約83坪の室内は、レイアウトのしやすい無柱の整形オフィスです。また、2面に設けられた窓から、自然光と風がよく入るでしょう。設備につきましては、エレベーター2基、OAフロア、個別空調などが揃い、充実しています。建物の目の前にコンビニが営業していますので、昼食時やちょっとしたお買い物に便利です。青山熊野神社ビルは外苑前駅(3番出口)の他に表参道駅(A2番出口)徒歩11分、国立競技場駅(A3番出口)徒歩14分で利用も可能です。

