井門神宮前6丁目ビルのテナント募集中区画
| 階数 | 面積 | 賃料(共益費含む) | 保証金 | 入居可能日 | 検討リスト | 詳細 |
|---|---|---|---|---|---|---|
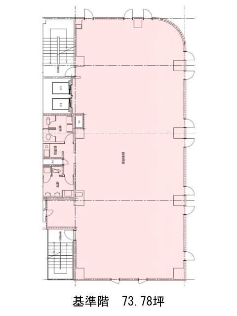
| 6 | 73.78坪 | 応相談(応相談) | 応相談 | 即 |
…新着物件
井門神宮前6丁目ビルのアクセス
井門神宮前6丁目ビルの物件情報
井門神宮前6丁目ビル(渋谷区神宮前)は渋谷駅(B1番出口)から徒歩4分の賃貸オフィスです。当ビルは地上9階建て、1985年竣工の新耐震基準に適合する構造です。明治通りの角地に沿って丸角が張り出すデザインには経年を感じさせないスタイリッシュさがあります。室内はシンプルな長方形で、2面にわたり窓が連なっているため採光・通風ともに良好です。設備面はエレベーター2基、個別空調、OAフロアが備えられ、フロア内の男女別トイレはリニューアル済みですので清潔です。また機械警備が導入されていますので、セキュリティ面も安心できるでしょう。周辺には飲食店が点在する他、コンビニ、スーパー、薬局なども近くにあり、お買い物やオフィス内でのランチを済ませる場合も便利です。井門神宮前6丁目ビルは渋谷駅(B1番出口)の他に明治神宮前駅(7番出口)徒歩7分、原宿駅(東口)徒歩12分で利用も可能です。

