ひきだしのような家にのテナント募集中区画
| 階数 | 面積 | 賃料(共益費含む) | 保証金 | 入居可能日 | 検討リスト | 詳細 |
|---|---|---|---|---|---|---|
| 5 | 29.26坪 | 965,580円/月(33,000円/坪) | 526万円 | 即 | ||
| 6 | 20.40坪 | 774,180円/月(37,950円/坪) | 422万円 | 即 |
…新着物件
ひきだしのような家にのアクセス
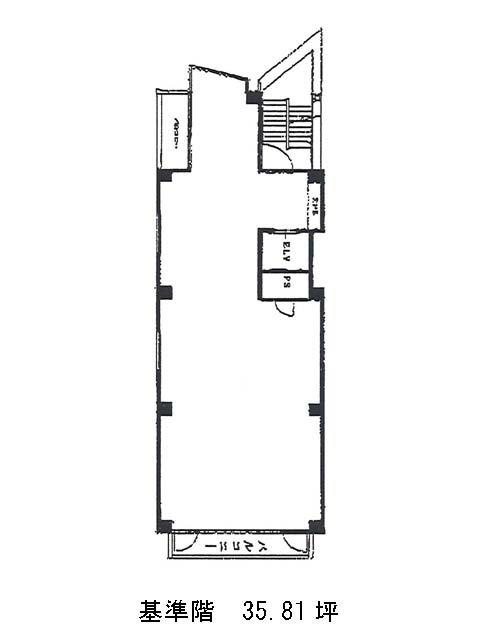
ひきだしのような家にの物件情報
ひきだしのような家に(渋谷区神南)は渋谷駅(B1番出口)から徒歩6分の賃貸オフィスです。ひきだしのような家には渋谷駅(B1番出口)の他に明治神宮前駅(1番出口)徒歩11分、原宿駅(西口)徒歩11分で利用も可能です。

