神南ハイム 3階 304-5
物件概要
物件番号
173-00075-43物件名
神南ハイム所在地
- 東京都渋谷区神南1-4-2
- アクセスマップ
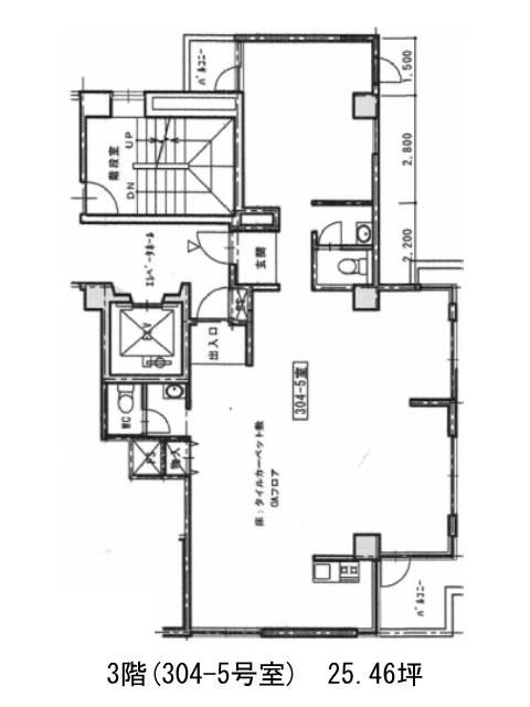
面積
25.46坪賃料(共益費含)
月額549,785円(21,594円/坪)
入居日
即保証金
2,499,026円礼金
2ケ月更新料
新1ケ月償却費
なし竣工
1980年7月構造
RC規模
地上5階トイレ
男女別空調
エレベーター
有セキュリティ
駐車場
有耐震
旧耐震基準基準階天井高
空室延床面積
25.46坪情報更新日
2025/10/29神南ハイムのテナント募集中区画
| 階数 | 面積 | 賃料(共益費含む) | 保証金 | 入居可能日 | 検討リスト | 詳細 |
|---|---|---|---|---|---|---|
| 3 | 25.46坪 | 549,785円/月(21,594円/坪) | 249万円 | 即 |
…新着物件
アクセス
神南ハイムの物件情報
神南ハイム(渋谷区神南)は渋谷駅(B1番出口)から徒歩7分の賃貸オフィスです。神南ハイムは渋谷駅(B1番出口)の他に明治神宮前駅(1番出口)徒歩8分、原宿駅(西口)徒歩9分で利用も可能です。

