2階は現在募集がありません
神南プラザビル 2階
物件概要
神南プラザビルのテナント募集中区画
現在、空室がございません。
神南プラザビルのアクセス
神南プラザビルの物件情報
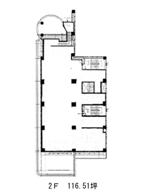
神南プラザビル(渋谷区神南)は渋谷駅(B1番出口)から徒歩6分の賃貸オフィスです。公園通り沿いの角地に立地するマンションタイプの7階建て、新耐震基準を満たしています。白く清潔感のある外観で、1階には飲食店やアパレルショップが入居しています。室内はコンパクトな無柱空間となっています。主な設備はエレベーター1基、室外の男女別トイレ、床面にはオフィスをすっきり使えるOAフロアが備えられています。周辺は渋谷駅から続く華やかな雰囲気で、飲食店を始め大小様々な店舗が立地しています。区役所などの公的施設や金融機関も多く、利便性が高いです。神南プラザビルは渋谷駅(B1番出口)の他に明治神宮前駅(1番出口)徒歩11分、原宿駅(西口)徒歩12分で利用も可能です。

