第2工業ビル 5階
物件概要
物件番号
173-00008-40物件名
第2工業ビル所在地
- 東京都渋谷区神南1-10-7
- アクセスマップ
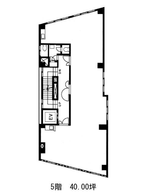
面積
40.00坪賃料(共益費含)
月額968,000円(24,200円/坪)
入居日
相談保証金
7,040,000円礼金
1ケ月更新料
新1ケ月償却費
2ケ月竣工
1970年6月構造
SRC規模
地上9階トイレ
男女別空調
個別空調エレベーター
有セキュリティ
有駐車場
無耐震
旧耐震基準基準階天井高
空室延床面積
66.00坪情報更新日
2025/11/06第2工業ビルのテナント募集中区画
| 階数 | 面積 | 賃料(共益費含む) | 保証金 | 入居可能日 | 検討リスト | 詳細 |
|---|---|---|---|---|---|---|
| 4 | 26.00坪 | 629,200円/月(24,200円/坪) | 457万円 | 相談 | ||
| 5 | 40.00坪 | 968,000円/月(24,200円/坪) | 704万円 | 相談 |
…新着物件
アクセス
第2工業ビルの物件情報
第2工業ビル(渋谷区神南)は渋谷駅(B1番出口)から徒歩4分の賃貸オフィスです。1970年竣工、地上9階建SRC造のビルです。白い外壁に大きな窓が並びシンプルな外観をしています。店舗としての利用が可能です。基準階面積は40.00坪。間取りは支柱が中央に無いため、オフィス家具等のレイアウトがしやすいでしょう。ビルの設備仕様は、EV・機械警備・個別空調・貸室外の男女別トイレ・給湯スペースがあります。神宮通り沿いに建ち、周辺はアパレルショップが多いエリアです。1階にはショップが入っており、目印としてわかりやすいでしょう。第2工業ビルは渋谷駅(B1番出口)の他に明治神宮前駅(7番出口)徒歩9分、原宿駅(西口)徒歩11分で利用も可能です。

