1階は現在募集がありません
グリーンスクエア新宿 1階
物件概要
グリーンスクエア新宿のテナント募集中区画
現在、空室がございません。
アクセス
グリーンスクエア新宿の物件情報
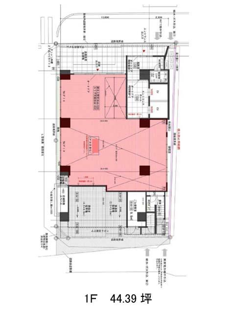
グリーンスクエア新宿(渋谷区千駄ヶ谷)は新宿三丁目駅(E8番出口)から徒歩3分の賃貸オフィスです。2022年竣工、明治通り沿いにある地上9階建てで、ハイスペックな設備の揃う物件となっています。ガラス張りに黒い横ラインがシックで美しい印象を与える外観です。名前の通り緑の葉に囲まれたネームプレートは来訪時の目印となるでしょう。貸室内は共用部が側面にまとまった長方形で、レイアウトを邪魔する柱はありません。当ビルにはエレベーター2基、個別空調、OAフロア、光ファイバーなど基本的な設備の他、屋上に緑のテラスや喫煙コーナーが設置され、働く人の心地よさへの配慮が行き届いています。周辺は新旧のビルが建ち並ぶオフィス街です。高島屋タイムズスクエアにも近く、新宿駅までに飲食店やコンビニ、薬局などが充実しています。グリーンスクエア新宿は新宿三丁目駅(E8番出口)の他に代々木駅(東口)徒歩6分、新宿駅(新南改札)徒歩6分で利用も可能です。

