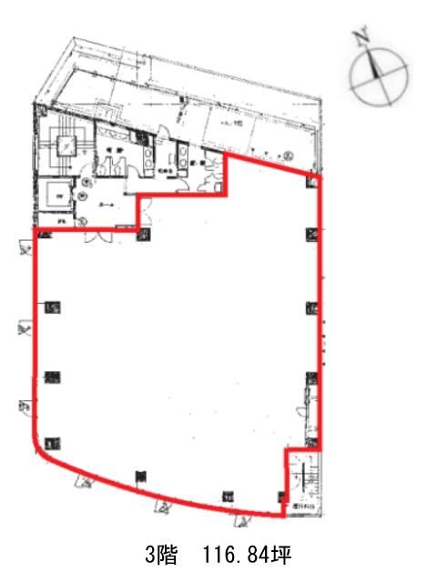
3階は現在募集がありません
TSビル 3階
物件概要
TSビルのテナント募集中区画
現在、空室がございません。
アクセス
TSビルの物件情報
TSビル(渋谷区代々木)は代々木駅(A1番出口)から徒歩3分の賃貸オフィスです。1992年竣工、地上6階建て。赤レンガ調の外観には重厚感が感じられます。石張りのエントランスはクラシックな高級感に溢れ、奥にエレベーターが1基設置されています。室内の共用設備や柱は端に寄って設置されていますので、効率的にスペースを使用できます。設備面は個別空調、男女別トイレを備え、24時間の使用が可能です。また駐車場が併設されていますので、お車をご利用の際も便利です。周辺環境としては、郵便局とコンビニが近く、また代々木駅周辺には飲食店が充実していますので、ランチタイムや社員同士の懇親の場に活用出来そうです。TSビルは代々木駅(A1番出口)の他に南新宿駅(出口)徒歩5分、北参道駅(1番出口)徒歩8分で利用も可能です。

