7階は現在募集がありません
1フロア募集区画あり

トップヒル並木 7階

前の写真 次の写真

物件概要

物件番号

181-00024-40

物件名

トップヒル並木

所在地

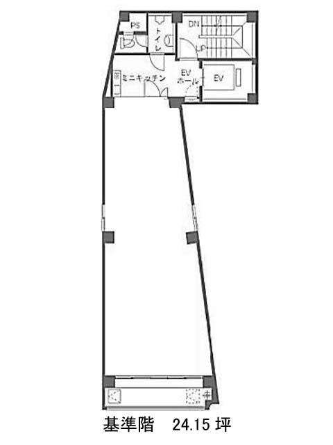
面積

24.15坪

賃料(共益費含)


入居日

募集終了

保証金

礼金

更新料

償却費

竣工

1989年5月

構造

SRC

規模

地上10階/地下1階

トイレ

男女別

空調

個別空調

エレベーター

セキュリティ

駐車場

耐震

新耐震基準

基準階天井高

2500mm

空室延床面積

24.15坪

最寄駅

情報更新日

2026/02/20

トップヒル並木のテナント募集中区画

階数 面積 賃料(共益費含む) 保証金 入居可能日 検討リスト 詳細
4 24.15坪 応相談(応相談) 応相談
…新着物件

トップヒル並木のアクセス

トップヒル並木の物件情報

トップヒル並木(渋谷区道玄坂)は渋谷駅(西口)から徒歩4分の賃貸オフィスです。
トップヒル並木は渋谷駅(西口)の他に神泉駅(北口)徒歩4分で利用も可能です。

近隣のエリア・駅から探す