6階は現在募集がありません

A-PLACE渋谷南平台 6階

前の写真 次の写真

物件概要

物件番号

182-00011-120

物件名

A-PLACE渋谷南平台

所在地

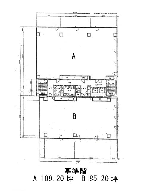
面積

109.20坪

賃料(共益費含)


入居日

募集終了

保証金

礼金

更新料

償却費

竣工

1989年7月

構造

SRC

規模

地上8階/地下1階

トイレ

男女別

空調

個別空調

エレベーター

セキュリティ

駐車場

耐震

新耐震基準

基準階天井高

2535~2545mm

空室延床面積

最寄駅

情報更新日

2025/03/14

A-PLACE渋谷南平台のテナント募集中区画

現在、空室がございません。

A-PLACE渋谷南平台のアクセス

A-PLACE渋谷南平台の物件情報

A-PLACE渋谷南平台(渋谷区南平台町)は渋谷駅(アベニュー口)から徒歩7分の賃貸オフィスです。
1989年竣工、新耐震基準に適合しています。地上8階地下1階建SRC造の建物です。中央の共用部分をはさみ、2つのフロアがございます。EV・駐車場・機械警備・個別空調・貸室外の男女別トイレといった設備仕様があり、光ケーブル導入済です。床はPCの配置がしやすいOAフロアを採用しています。二面採光の室内は十分な明るさが取り入れられるでしょう。共用部は所々に木目調のデザインが取り入れられ、温かみを感じる内装をしています。
A-PLACE渋谷南平台は渋谷駅(アベニュー口)の他に神泉駅(北口)徒歩7分で利用も可能です。

近隣のエリア・駅から探す