8階は現在募集がありません
A-PLACE渋谷南平台 8階
物件概要
A-PLACE渋谷南平台のテナント募集中区画
現在、空室がございません。
A-PLACE渋谷南平台のアクセス
A-PLACE渋谷南平台の物件情報
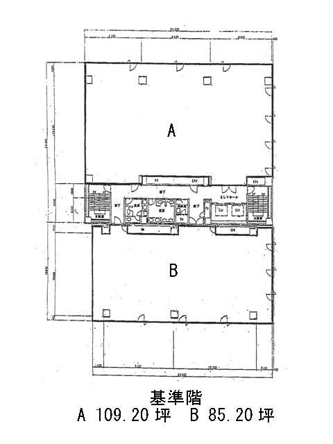
A-PLACE渋谷南平台(渋谷区南平台町)は渋谷駅(アベニュー口)から徒歩7分の賃貸オフィスです。1989年竣工、新耐震基準に適合しています。地上8階地下1階建SRC造の建物です。中央の共用部分をはさみ、2つのフロアがございます。EV・駐車場・機械警備・個別空調・貸室外の男女別トイレといった設備仕様があり、光ケーブル導入済です。床はPCの配置がしやすいOAフロアを採用しています。二面採光の室内は十分な明るさが取り入れられるでしょう。共用部は所々に木目調のデザインが取り入れられ、温かみを感じる内装をしています。A-PLACE渋谷南平台は渋谷駅(アベニュー口)の他に神泉駅(北口)徒歩7分で利用も可能です。

