3階は現在募集がありません
1フロア募集区画あり

渋谷TSKビル 3階

前の写真 次の写真

物件概要

物件番号

182-00057-30

物件名

渋谷TSKビル

所在地

面積

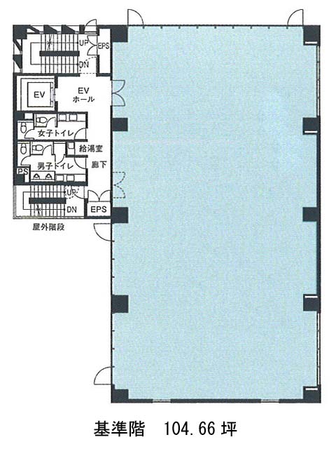
104.66坪

賃料(共益費含)


入居日

募集終了

保証金

礼金

更新料

償却費

竣工

2008年6月

構造

RC

規模

地上4階/地下1階

トイレ

男女別

空調

個別空調

エレベーター

セキュリティ

駐車場

耐震

新耐震基準

基準階天井高

2620mm

空室延床面積

104.66坪

最寄駅

情報更新日

2025/11/07

渋谷TSKビルのテナント募集中区画

階数 面積 賃料(共益費含む) 保証金 入居可能日 検討リスト 詳細
4 104.66坪 応相談(応相談) 応相談 2025年12月上旬
…新着物件

アクセス

渋谷TSKビルの物件情報

渋谷TSKビル(渋谷区南平台町)は渋谷駅(アベニュー口)から徒歩7分の賃貸オフィスです。
2008年竣工、地上4階地下1階建RC造のビルです。前面道路側にミラーガラスが並びすっきりとした外観をしています。貸室は長方形で支柱が邪魔しない為オフィス家具等のレイアウトがしやすいでしょう。基準階面積は104.66坪。中規模な事務所をお探しの企業におすすめ致します。設備仕様として、EV・駐車場・非常階段2箇所・個別空調・OAフロア・貸室外の男女別トイレがあります。天井高2600㎜以上で開放感のある室内をしています。
渋谷TSKビルは渋谷駅(アベニュー口)の他に神泉駅(北口)徒歩8分で利用も可能です。

近隣のエリア・駅から探す