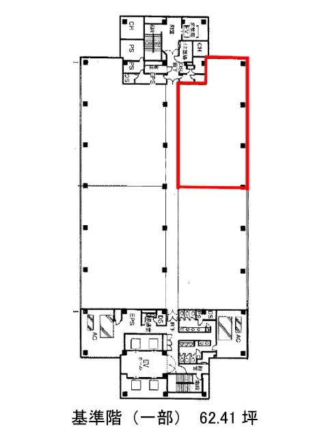
9階は現在募集がありません
東京都健康プラザ(ハイジア) 9階
物件概要
東京都健康プラザ(ハイジア)のテナント募集中区画
現在、空室がございません。
アクセス
東京都健康プラザ(ハイジア)の物件情報
東京都健康プラザ(ハイジア)(新宿区歌舞伎町)は西武新宿駅(北口)から徒歩3分の賃貸オフィスです。1993年竣工で地上18階の大きなビルです。新耐震基準に適合できていて、安心してご入居頂けます。ガラス張りが美しく、特徴的なフォルムのつくりなので、とても印象的な外観となっております。内装は全体的に白を基調としていて明るい印象で、エントランスやエレベーターホールは広々としたつくりとなっております。3ウェイ方式の床ですので、配線をスッキリ収納できます。セントラル空調、男女別のトイレ設置。地下1階は飲食店街になっていて便利です。東京都健康プラザ(ハイジア)は西武新宿駅(北口)の他に新宿西口駅(D3番出口)徒歩8分、大久保駅(南口)徒歩8分で利用も可能です。

