14階は現在募集がありません

東京都健康プラザ(ハイジア) 14階

前の写真 次の写真

物件概要

物件番号

192-00037-210

物件名

東京都健康プラザ(ハイジア)

所在地

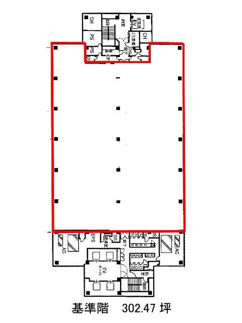
面積

302.47坪

賃料(共益費含)


入居日

募集終了

保証金

礼金

更新料

償却費

竣工

1993年4月

構造

SRC

規模

地上18階/地下4階

トイレ

男女別

空調

セントラル

エレベーター

セキュリティ

駐車場

耐震

新耐震基準

基準階天井高

2500mm

空室延床面積

最寄駅

情報更新日

2025/05/30

東京都健康プラザ(ハイジア)のテナント募集中区画

現在、空室がございません。

アクセス

東京都健康プラザ(ハイジア)の物件情報

東京都健康プラザ(ハイジア)(新宿区歌舞伎町)は西武新宿駅(北口)から徒歩3分の賃貸オフィスです。
1993年竣工で地上18階の大きなビルです。新耐震基準に適合できていて、安心してご入居頂けます。ガラス張りが美しく、特徴的なフォルムのつくりなので、とても印象的な外観となっております。内装は全体的に白を基調としていて明るい印象で、エントランスやエレベーターホールは広々としたつくりとなっております。3ウェイ方式の床ですので、配線をスッキリ収納できます。セントラル空調、男女別のトイレ設置。地下1階は飲食店街になっていて便利です。
東京都健康プラザ(ハイジア)は西武新宿駅(北口)の他に新宿西口駅(D3番出口)徒歩8分、大久保駅(南口)徒歩8分で利用も可能です。

近隣のエリア・駅から探す