4階は現在募集がありません
1フロア募集区画あり

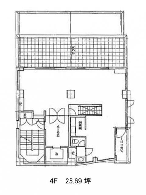
市ヶ谷ガーデンプラザビル 4階

前の写真 次の写真

物件概要

物件番号

211-00019-50

物件名

市ヶ谷ガーデンプラザビル

所在地

面積

25.69坪

賃料(共益費含)


入居日

募集終了

保証金

礼金

更新料

償却費

竣工

1989年12月

構造

RC

規模

地上4階/地下1階

トイレ

男女共用

空調

エレベーター

セキュリティ

駐車場

耐震

新耐震基準

基準階天井高

空室延床面積

72.65坪

最寄駅

情報更新日

2026/02/19

市ヶ谷ガーデンプラザビルのテナント募集中区画

階数 面積 賃料(共益費含む) 保証金 入居可能日 検討リスト 詳細
3-4F 72.65坪 応相談(応相談) 応相談
…新着物件

市ヶ谷ガーデンプラザビルのアクセス

市ヶ谷ガーデンプラザビルの物件情報

市ヶ谷ガーデンプラザビル(新宿区市谷砂土原町)は市ヶ谷駅(5番出口)から徒歩5分の賃貸オフィスです。
1989年竣工、地上4階地下1階建RC造のビルです。新耐震基準を満たしています。白を基調とした清潔感のある外観は、来客時にも好印象でしょう。設備仕様として、EV・機械警備・空調・男女別トイレがあります。2007年のリニューアルを経て、築年数を感じさせない清潔感があります。牛込中央通り沿いに立地し、周辺はマンションや中層階のオフィスビルが建ち並びます。足をのばすと飲食店が軒を連ねる神楽坂エリアとなり、ランチや接待等にご利用頂けるでしょう。
市ヶ谷ガーデンプラザビルは市ヶ谷駅(5番出口)の他に牛込神楽坂駅(A1番出口)徒歩9分、飯田橋駅(B3番出口)徒歩13分で利用も可能です。

近隣のエリア・駅から探す