3階は現在募集がありません
丁子屋ビル 3階
物件概要
丁子屋ビルのテナント募集中区画
現在、空室がございません。
アクセス
丁子屋ビルの物件情報
丁子屋ビル(新宿区新宿)は新宿御苑前駅(1番出口)から徒歩4分の賃貸オフィスです。交差点角地に立地しており、周辺の建物に対して程よく抜け感があるため、開放感・通風・採光性の三拍子がそろった環境が魅力です。ビル名のオブジェが外観に掲げられており、初めて訪れる方にも場所を伝えやすい視認性の高さもポイント。
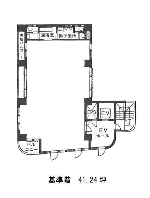
基準階は約41坪とコンパクトながら、レイアウトしやすいシンプルな造りで、無駄のない執務空間を実現可能。男女別トイレやOAフロアなど、日々の使い勝手を左右する基本設備もきちんと整っています。丁子屋ビルは新宿御苑前駅(1番出口)の他に新宿三丁目駅(C7番出口)徒歩5分、新宿駅(A8番出口)徒歩12分で利用も可能です。

