新宿311ビルのテナント募集中区画
| 階数 | 面積 | 賃料(共益費含む) | 保証金 | 入居可能日 | 検討リスト | 詳細 |
|---|---|---|---|---|---|---|
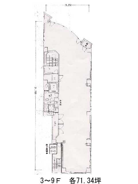
| 8 | 71.34坪 | 応相談(応相談) | 応相談 | 即 |
…新着物件
アクセス
新宿311ビルの物件情報
新宿311ビル(新宿区新宿)は新宿三丁目駅(C7番出口)から徒歩2分の賃貸オフィスです。
1988年竣工、地上10階地下1階建ての鉄骨鉄筋コンクリート造です。靖国通りに面しており交通量や人通りもかなり多いため視認性が高いといえるでしょう。外観はシックな色を基調としており高級感ある雰囲気です。主な設備面としてはOAフロア、個別空調、エレベーター1基完備です。基準階面積は約71坪で無柱空間、縦長の造りであるためレイアウトしやすく、室内の窓からはよく陽が入るので明るい空間です。周辺にはカフェや飲食店が立ち並び食事や打ち合わせの際も気軽に利用できる点が魅力的です。
新宿311ビルは新宿三丁目駅(C7番出口)の他に新宿駅(B12番出口)徒歩8分、新宿御苑前駅(1番出口)徒歩8分で利用も可能です。

