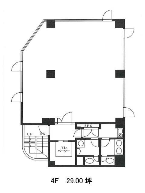
4階は現在募集がありません
新宿石井ビル 4階
物件概要
新宿石井ビルのテナント募集中区画
現在、空室がございません。
アクセス
新宿石井ビルの物件情報
新宿石井ビル(新宿区新宿)は新宿三丁目駅(E1番出口)から徒歩5分の賃貸オフィスです。新宿石井ビルは新宿三丁目駅(E1番出口)の他に新宿御苑前駅(1番出口)徒歩9分、東新宿駅(A2番出口)徒歩10分で利用も可能です。

