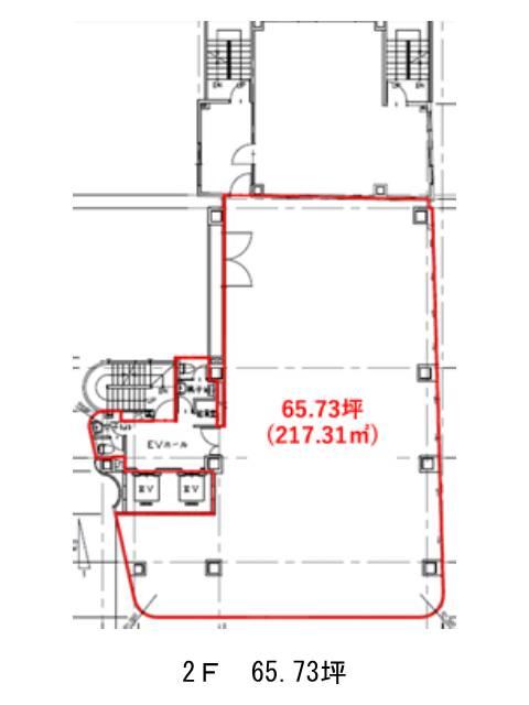
2階は現在募集がありません
新宿通東洋ビル 2階
物件概要
新宿通東洋ビルのテナント募集中区画
現在、空室がございません。
アクセス
新宿通東洋ビルの物件情報
新宿通東洋ビル(新宿区新宿)は新宿三丁目駅(C5番出口)から徒歩2分の賃貸オフィスです。新宿通りと明治通りが交差する、新宿二丁目交差点の角地にある、地上12階・地下1階建てのビルです。白いタイルとガラスを組み合わせた外壁の、清潔感のある外観です。フロアによって異なりますが、52坪から67坪ほどの広さがあります。床はフリーアクセスなので、レイアウトしやすくなっています。トイレは男女別で共用部に設置されています。新宿駅へ徒歩8分ほどで行ける距離なので、どこからでもアクセスしやすい立地です。新宿通東洋ビルは新宿三丁目駅(C5番出口)の他に新宿御苑前駅(1番出口)徒歩5分、新宿駅(A8番出口)徒歩8分で利用も可能です。

