ニューリバー51ビルディングのテナント募集中区画
| 階数 | 面積 | 賃料(共益費含む) | 保証金 | 入居可能日 | 検討リスト | 詳細 |
|---|---|---|---|---|---|---|
| 8 | 26.02坪 | 371,800円/月(14,290円/坪) | 89万円 | 相談 |
…新着物件
アクセス
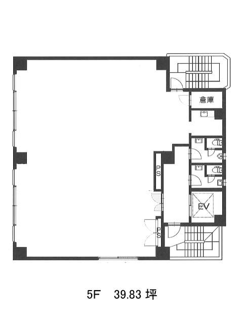
ニューリバー51ビルディングの物件情報
ニューリバー51ビルディング(新宿区新小川町)は飯田橋駅(C1番出口)から徒歩7分の賃貸オフィスです。ニューリバー51ビルディングは飯田橋駅(C1番出口)の他に後楽園駅(1番出口)徒歩11分、牛込神楽坂駅(A3番出口)徒歩12分で利用も可能です。

