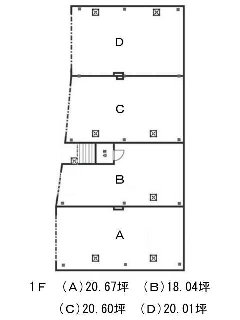
1階 1Aは現在募集がありません
エキューラ神楽坂 1階 1A
物件概要
エキューラ神楽坂のテナント募集中区画
現在、空室がございません。
エキューラ神楽坂のアクセス
エキューラ神楽坂の物件情報
エキューラ神楽坂(新宿区神楽坂)は神楽坂駅(1番出口)から徒歩2分の賃貸オフィスです。エキューラ神楽坂は神楽坂駅(1番出口)の他に牛込神楽坂駅(A3番出口)徒歩7分、江戸川橋駅(4番出口)徒歩9分で利用も可能です。

