合人社東京永田町ビル 3階
物件概要
物件番号
378-00005-80物件名
合人社東京永田町ビル所在地
- 東京都千代田区永田町1-11-28
- アクセスマップ
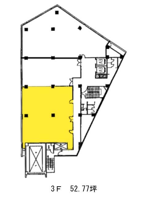
面積
52.77坪賃料(共益費含)
月額1,335,081円(25,300円/坪)
入居日
即保証金
7,282,260円礼金
なし更新料
なし償却費
なし竣工
1967年7月構造
SRC規模
地上9階/地下2階トイレ
男女別空調
個別空調エレベーター
有セキュリティ
有駐車場
有耐震
耐震補強済み基準階天井高
2460mm空室延床面積
52.77坪情報更新日
2025/11/17合人社東京永田町ビルのテナント募集中区画
| 階数 | 面積 | 賃料(共益費含む) | 保証金 | 入居可能日 | 検討リスト | 詳細 |
|---|---|---|---|---|---|---|
| 3 | 52.77坪 | 1,335,081円/月(25,300円/坪) | 728万円 | 即 |
…新着物件
アクセス
合人社東京永田町ビルの物件情報
合人社東京永田町ビル(千代田区永田町)は永田町駅(4番出口)から徒歩1分の賃貸オフィスです。永田町駅3番出口そばに立地しており、雨の日でもスムーズにビル内へ入ることができるアクセスの良さが魅力のオフィスビルです。こちらのビルの1階にはコンビニが営業中ですので、買い物に便利ですね。2000年代何度かにリニューアルをしている事から、築年に関わらず綺麗なビルです。特にエントランスは高級感がありますよ。男女別トイレやフリーアクセスなどの嬉しい設備環境も整っています。合人社東京永田町ビルは永田町駅(4番出口)の他に赤坂見附駅(10番出口)徒歩8分、半蔵門駅(1番出口)徒歩9分で利用も可能です。

