2階は現在募集がありません
HKパークビルⅢ 2階
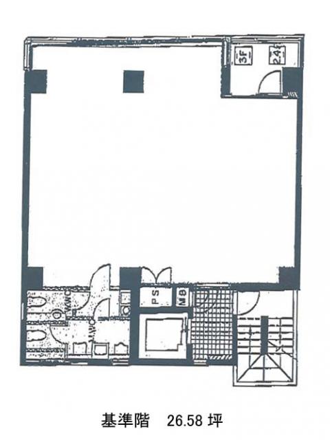
物件概要
HKパークビルⅢのテナント募集中区画
現在、空室がございません。
HKパークビルⅢのアクセス
HKパークビルⅢの物件情報
HKパークビルⅢ(千代田区神田猿楽町)は水道橋駅(東口)から徒歩6分の賃貸オフィスです。HKパークビルⅢは水道橋駅(東口)の他に神保町駅(A5番出口)徒歩7分、御茶ノ水駅(御茶ノ水橋口)徒歩9分で利用も可能です。

