HKパークビルⅢのテナント募集中区画
| 階数 | 面積 | 賃料(共益費含む) | 保証金 | 入居可能日 | 検討リスト | 詳細 |
|---|---|---|---|---|---|---|
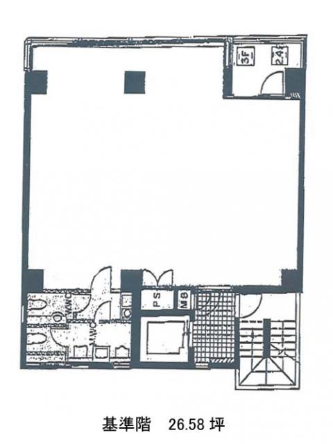
| 3 | 27.00坪 | 475,200円/月(17,600円/坪) | 280万円 | 即 |
…新着物件
アクセス
HKパークビルⅢの物件情報
HKパークビルⅢ(千代田区神田猿楽町)は水道橋駅(東口)から徒歩6分の賃貸オフィスです。HKパークビルⅢは水道橋駅(東口)の他に神保町駅(A5番出口)徒歩7分、御茶ノ水駅(御茶ノ水橋口)徒歩9分で利用も可能です。

