1階は現在募集がありません
2フロア募集区画あり

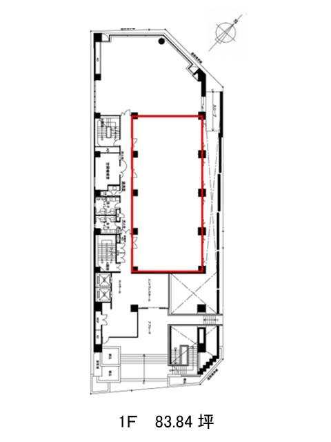
尚友会館 1階

前の写真 次の写真

物件概要

物件番号

380-00001-152

物件名

尚友会館

所在地

面積

83.84坪

賃料(共益費含)


入居日

募集終了

保証金

礼金

更新料

償却費

竣工

1985年1月

構造

SRC

規模

地上8階/地下2階

トイレ

男女別

空調

セントラル

エレベーター

セキュリティ

駐車場

耐震

新耐震基準

基準階天井高

2450mm

空室延床面積

112.21坪

最寄駅

情報更新日

2025/12/18

尚友会館のテナント募集中区画

階数 面積 賃料(共益費含む) 保証金 入居可能日 検討リスト 詳細
5 59.84坪 応相談(応相談) 応相談
6 52.37坪 応相談(応相談) 応相談
…新着物件

アクセス

尚友会館の物件情報

尚友会館(千代田区霞が関)は霞ケ関駅(A13番出口)から徒歩5分の賃貸オフィスです。
霞が関駅から徒歩圏、六本木通りに面する角地に立地するオフィスビル。前面に遮る建物がなく、採光性・開放感ともに優れており、執務空間として快適な環境が整っています。手入れの行き届いたエントランス・エレベーターホールは、来訪者にも好印象を与えます。エレベーターは2基設置され、通勤時間帯の混雑も軽減。1フロアあたり最大約235坪の規模を誇り、分割区画もあるため、少人数から大規模まで多様なレイアウトに対応できます。水回りは共用部にまとめられており、室内を効率的に利用可能。霞が関という行政・法律の中心地に位置することから、士業やコンサルティング、政策関連の業種とも相性の良いロケーションです。
尚友会館は霞ケ関駅(A13番出口)の他に虎ノ門駅(6番出口)徒歩5分、国会議事堂前駅(4番出口)徒歩6分で利用も可能です。

近隣のエリア・駅から探す