3階は現在募集がありません
プロンテ九段ビル 3階
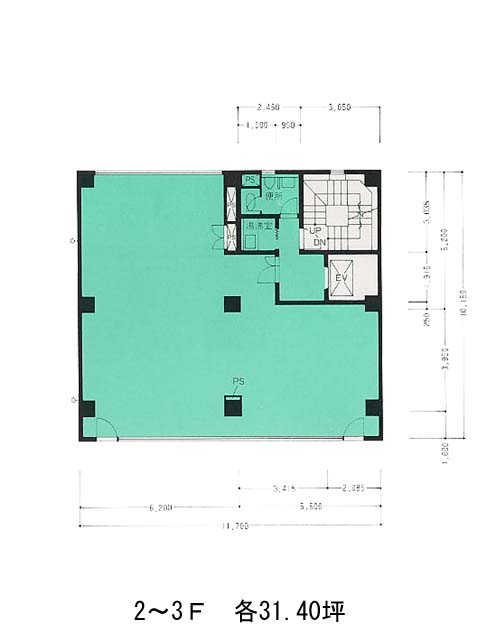
物件概要
プロンテ九段ビルのテナント募集中区画
現在、空室がございません。
プロンテ九段ビルのアクセス
プロンテ九段ビルの物件情報
プロンテ九段ビル(千代田区九段南)は市ヶ谷駅(A3番出口)から徒歩5分の賃貸オフィスです。プロンテ九段ビルは市ヶ谷駅(A3番出口)の他に半蔵門駅(5番出口)徒歩10分、九段下駅(1番出口)徒歩11分で利用も可能です。

