3階は現在募集がありません
飛栄九段ビル 3階
物件概要
飛栄九段ビルのテナント募集中区画
現在、空室がございません。
アクセス
飛栄九段ビルの物件情報
飛栄九段ビル(千代田区九段南)は市ヶ谷駅(A3番出口)から徒歩6分の賃貸オフィスです。
物件は靖国通りに面しており、接道面の幅が広いため存在感があります。外観はチャコールグレーの石張りでクレバーな印象。市ヶ谷駅の他に九段下駅からのアクセスが可能で、どちらの駅からも靖国通りを直進するシンプルな道順です。また、物件前にバス停があります。
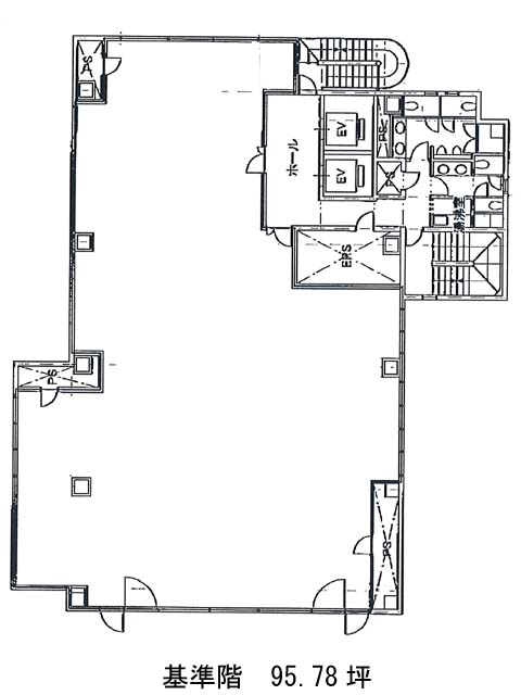
基準階は各95.78坪で室内に柱はありますが、お部屋はゆとりある空間です。男女別トイレ、湯沸室、エレベーター2基は全て室外に設置されています。フリーアクセスと機械警備も導入済みですので、設備環境面でもご満足頂ける物件かと思います。
飛栄九段ビルは市ヶ谷駅(A3番出口)の他に九段下駅(1番出口)徒歩10分、半蔵門駅(5番出口)徒歩11分で利用も可能です。


