地下1階は現在募集がありません
1フロア募集区画あり

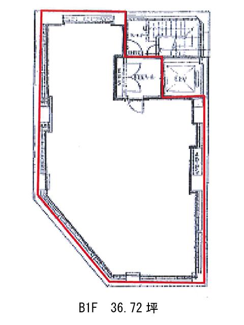
井門九段下ビル 地下1階

前の写真 次の写真

物件概要

物件番号

386-00034-82

物件名

井門九段下ビル

所在地

面積

36.72坪

賃料(共益費含)


入居日

募集終了

保証金

礼金

更新料

償却費

竣工

1991年4月

構造

SRC

規模

地上9階/地下1階

トイレ

空調

個別空調

エレベーター

セキュリティ

駐車場

耐震

新耐震基準

基準階天井高

2500mm

空室延床面積

36.75坪

最寄駅

情報更新日

2026/02/04

井門九段下ビルのテナント募集中区画

階数 面積 賃料(共益費含む) 保証金 入居可能日 検討リスト 詳細
4 36.75坪 応相談(応相談) 応相談 2026年3月上旬
…新着物件

井門九段下ビルのアクセス

井門九段下ビルの物件情報

井門九段下ビル(千代田区九段北)は九段下駅(7番出口)から徒歩2分の賃貸オフィスです。
物件は九段下駅7番出入口のはす向かいに立地するため、交通アクセスがスムーズです。また、目白通り沿いの角地で1階にはエクセシオールカフェが営業中ですので、視認性にも優れています。新光ビルの貸室は各37坪前後で、通り側が弧を描いている少し変わった間取り。物件は大通り沿いの開けた場所にあることから充分な採光が望め、明るい執務空間です。トイレ男女別・OAフロア有・機械警備付で設備環境も整っております。新耐震基準、鉄骨鉄筋コンクリート造ですので、造りもしっかりしていますよ。
井門九段下ビルは九段下駅(7番出口)の他に神保町駅(A2番出口)徒歩7分、飯田橋駅(A5番出口)徒歩8分で利用も可能です。

近隣のエリア・駅から探す