一口坂TSビルのテナント募集中区画
| 階数 | 面積 | 賃料(共益費含む) | 保証金 | 入居可能日 | 検討リスト | 詳細 |
|---|---|---|---|---|---|---|
| 2 | 47.42坪 | 886,754円/月(18,700円/坪) | 644万円 | 即 |
…新着物件
アクセス
一口坂TSビルの物件情報
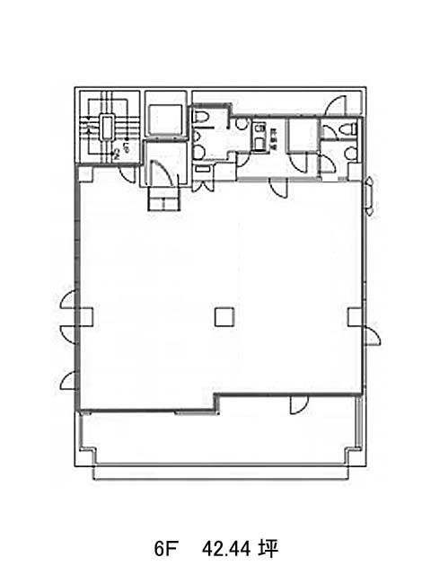
一口坂TSビル(千代田区九段北)は市ヶ谷駅(A4番出口)から徒歩6分の賃貸オフィスです。靖国通りから少し入ったところに位置し、学校や神社が近くにあります。築年は1988年ですが新耐震基準をクリアしています。外観は御影石風のブロック素材を使用した、重厚感のあるデザインです。室内の一部に柱がありますがほぼ正方形の間取りで床はフリーアクセスのため、レイアウトはしやすいでしょう。室外には男女別トイレ、給湯室があり、機械警備も備えているため快適、安心に過ごすことが出来ます。一口坂TSビルは市ヶ谷駅(A4番出口)の他に飯田橋駅(西口)徒歩11分、九段下駅(1番出口)徒歩14分で利用も可能です。

